2020-06-19 23:01:57 sunmedia 189
近日多家媒体报道,市民赵女士反映,她花1500余万元购买了朝阳区金茂府一处精装修住宅,并于去年年底入住。7月26日早上6点左右,她发现卧室天花板的石膏块突然坠落。对此,小区开发商方兴融创相关负责人称,愿意为业主维修,并作相应赔偿。目前,双方就赔偿金额尚未达成一致。????????????????????????????????
??????????????????????真是因为工艺问题导致的坠落吗?
??????????????????????专业人士 VS 饰百秀SPECIAL
专业人士分析:
可能是土建时制模平整度不够,装修时为找平,粉刷层过厚引起空鼓,导致如此大面积脱落。
SPECIAL分析:
大多数国内设计师只能做到创意,设计师考虑更多的是创意美观,不考虑到承重结构、安全性能、合理舒适度等问题。同时设计图纸并非工艺落地图纸,图纸不够详尽,并未标注施工工艺规范,再加上“施工外包、转包”,工人现场随意施工,最终导致“天花板坠落”等严重的安全问题。
????????????????????????如何解决豪宅落地问题?
????????????????????????私邸定制 VS 传统装修
SPECIAL提出用“定制”淘汰“装修”,设计师的背后应该是强大的工程师团队和成熟的定制工厂,来确保和辅助设计师创意的安全落地。
设计师的图纸并不能直接到现场实施,必须由工程师进行工艺设计和分解再进入现场实施,技术工人完全按照图纸上的工艺工序完成实施动作。

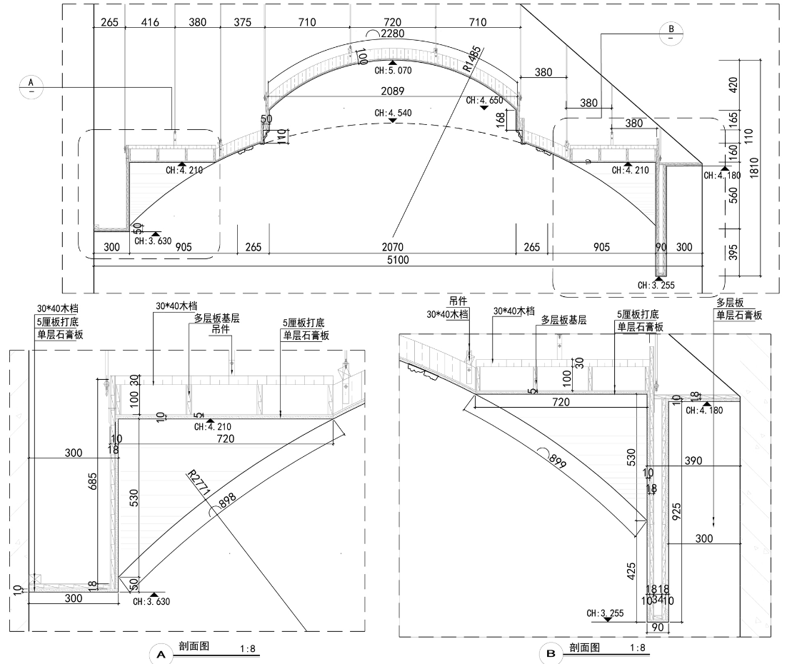
???????????????????????图为SPECIAL 吊顶图纸之一
用工厂定制淘汰现场工人随意性施工的乱象,传统别墅装修的好坏取决于工人“手艺”的高低,而中国没有很好的产业工人,导致很少有企业能做好别墅。所以SPECIAL将美国成熟的私邸定制模式带到中国,结合中国市场国情,除了培养了一大批优秀的工人,还将复杂工艺工厂化定制,确保精准度和环保性。

???????????????????????????图为SPECIAL 国际工厂定制
???????????????????????????SPECIAL的每一个私邸项目
???????????????????????????都用上千张设计图纸
???????????????????????????来控制现场实施和工厂化定制

??????????????????????????? 图为 SPECIAL绿城玉园私邸图纸